Оголосили переможців архітектурного конкурсу з відбудови житла на Північній Салтівці
Канадське архітектурне бюро WZMH оголосило результати конкурсу проєктів з відбудови Північної Салтівки Rebuild Ukraine. У ньому змагалися 369 учасників — як студенти, так і досвідчені архітектори.
«Люк» ділиться подробицями проєктів-переможців.
Що це за конкурс?
Rebuild Ukraine — конкурс проєктів з відбудови українських міст. Він орієнтований на архітекторів та студентів архітектурних спеціальностей та вже втретє проходить за ініціативи канадської компанії WZMH Architects.
Цього разу метою конкурсу став пошук шляхів швидкого відновлення Північної Салтівки, що найбільше постраждала від російських бомбардувань з-поміж інших районів міста.
«Перші три місяці війни я прожив в одному зі сховищ Салтівського району Харкова. Я відчув тут абсолютно новий стан життя, нові правила та нову естетику, — розповідає у прес-релізі конкурсу один з його учасників Ярослав Лебединець.
Всі ці правила нового буття я виразив у своєму проєкті. Салтівка у майбутньому для мене — це не тільки про комфорт, це про сенс, який виник у жителів цього району, про їхні враження та спогади, які мають не травмувати, а стати сенсом жити далі».

Як оцінювалися проєкти?
Усього на конкурс Rebuild Ukraine зареєструвалося 369 професійних архітекторів та студентів, які сформували 210 команд. До фіналу потрапило 110 учасників, які запропонували 46 архітектурних проєкти — і тільки дев’ять із них отримали винагороду.
Журі з українських, канадських та американських архітекторів оцінювало проєкти за такими критеріями:
- Функціональність та стійкість конструкції;
- Креативність та оригінальність;
- Доступність та інклюзивність;
- Естетична привабливість;
- Можливість швидкої реалізації;
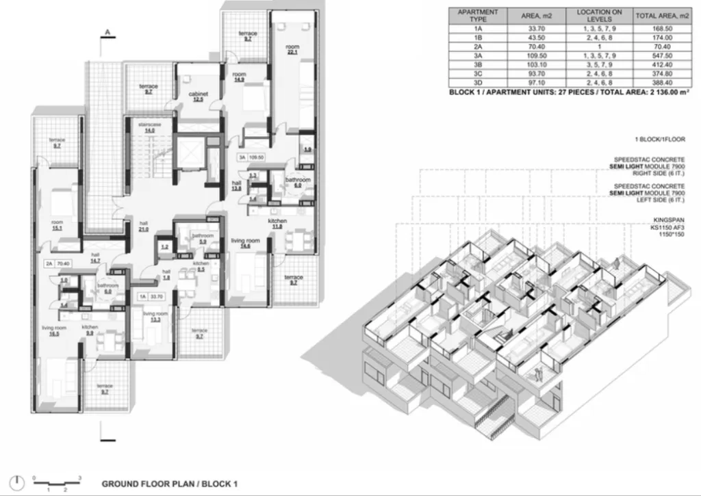
- Використання модульних блоків Speedstac та утеплених панелей Kingspan.
Організатори конкурсу переконані, що у відновленні українських міст важливо не тільки повернутися до їх попереднього стану, а й зробити кращими, комфортнішими та привітнішими.
«Завдяки цьому архітектурному конкурсу ми відкрили для себе чимало якісних проєктів та креативних рішень від наших молодих українських колег, — зазначає один з директорів та ідеолог WZMH Зенон Радевич. — Роботи як студентів, так і професіоналів демонструють їхню здатність талановито та далекоглядно керувати процесом відбудови своєї країни».
Які проєкти запропонували архітектори-професіонали?
Перше місце посів проєкт команди Марії Мисак, Дар’ї Смоліної, Олега Чабана, Андрія Откидача, Іри Сакало, Анастасії Деміховської, Анастасії Василишин та Єлизавети Рейнат.
«Це чудова нагода показати наші здібності та зробити власний внесок у розвиток та відбудову України, — коментують переможці. — Ми також дуже зацікавлені у можливості спробувати попрацювати над запропонованими модульними системами та енергоефективними панелями в контексті відбудови України».
Друге місце — проєкт Гліба Семякіна, Наталії Калініної та Олександра Філя.
«Деякі члени нашої команди виросли на Салтівці, тому для нас це не просто ділянка для проєктування, — пояснює архітектор Олександр Філь. — Нам, як професіоналам, важливо донести своє бачення майбутнього цього району. А завдяки конкурсу ми можемо розпочати публічну дискусію, що саме треба Харкову в даному конкретному місці».
Третє місце — проєкт Данила та Микити Бєлокопитових.
«Ми Українці, і нам важливо бути причетним до творення української історії, — розповідають вони. — Ми хочемо допомагати в тому, що найкраще вміємо — створювати нове, людиноорієнтоване середовище, яке має прийти на заміну радянському системоорієнтованому».
Четверте місце — проєкт архітекторки Анни Третьяк з реконструкції будинку на вулиці Наталії Ужвій, чотири з шести під’їздів якого зруйновали російські обстріли навесні 2022 року.
Приз глядацьких симпатій отримав проєкт Ірини Камбур — його обирали підписники сторінки конкурсу в Instagram. Архітекторка запропонувала побудувати нові багатоповерхівки замість зруйнованих багатосекційних будинків на тій-таки вулиці Наталії Ужвій, обладнати їх підземним паркінгом та укриттями.
Які студентські роботи вийшли до фіналу?
Перше місце отримав проєкт Владислава Мітіна, Едуарда Васьковського та Владислава Волинського — студентів Київського національного університету будівництва та архітектури, а також Національного університету водного господарства та природокористування.
Друге місце — проєкт Сергія Сьомкіна з Київського національного університету технологій та дизайну.
«Це був мій перший досвід участі в архітектурних конкурсах, — каже він. — Я зареєструвався, тому що тема конкурсу здалася мені актуальною та цікавою водночас. В результаті, я не лише випробував свої сили та навички, а й став корисним, запропонувавши один з кращих проєктів з відбудови Північної Салтівки».
Третє місце — проєкт Маргарити Ничипоренко та Андрія Мерзлякова з Одеської державної академії будівництва та архітектури
«Ми виділили для себе основні критерії майбутнього проєкту: малоповерховість, реалістичність реалізації, збереження автентичності району, економічна рентабельність та оригінальність ідеї», — розповідає Андрій Мерзляков.
Приз глядацьких симпатій отримали студентки Юлія Яригіна та Софія Забродіна, студентки Донбаської національної академії будівництва та архітектури. Вони запропонували відділити найбільш постраждалі блоки багатосекційних будинків від уцілілих та перебудувати їх з використанням вертикального озеленення.
Антон Алохінссон, фото — Rebuild Ukraine, обкладинка — Катерина Дрозд
Читайте також:












































































